Ersatzteile für Wodtke ivo.tec water+ Kaminofen

Wodtke ivo.tec water+ Ersatzteile

Wodtke überzeugt durch moderne Technik, Funktionalität und die Verarbeitung hochwertiger Materialien. Diese Qualität spiegelt sich in dem Wodtke ivo.tec water+ wieder. Auch ein hochwertiger Kaminofen wie der Wodtke ivo.tec water+ bedarf der richtigen Pflege und dem rechtzeitigen Austauschen defekter Teile. Alle benötigten Ersatzteile für Ihren Wodtke ivo.tec water+ finden Sie bei uns im Shop, wie zum Beispiel:

  
  Ascherost
  Bedieneinheit
  Brennertopf
  Dichtung
  Feuerraumauskleidung
  Feuerraumtür
  Förderschnecke
  Hauptplatine
  Kabel
  Lüftermotor
  Luftmengensensor
  Rahmen
  Schlauch
  Schneckenmotor
  Sichtscheibe
  Temperaturfühler
  Zündkabel
  Zündung
  Zwischenbodendichtung

Wodtke ivo.tec water+ Ersatzteile – günstig online bestellen

Wodtke ivo.tec water+ Ascherost

Wodtke ivo.tec water+ Ascherost

Original Ascherost für den Pelletofen Wodtke ivo.tec water+

  • passend für Modelle bis Fertigungsnummer 600 045

Wodtke ivo.tec water+ Ascherost Eckdaten:

  • Feuerrost, Feuerraumrost
  • Material Guss
Wodtke ivo.tec water+ Bedienboard

Wodtke ivo.tec water+ Bedienboard

Original Bedieneinheit für den Pelletofen Wodtke ivo.tec water+

Wodtke ivo.tec water+ Bedieneinheit Eckdaten:

  • Display, Steuerpanel
  • Maße (B/L) 30 mm mm x 140 mm mm
  • BB-S4
  • ohne Kabel
  • Position 62 in der Explosionszeichnung
Wodtke ivo.tec water+ Bedienboardrahmen

Wodtke ivo.tec water+ Bedienboardrahmen

Original Rahmen für Bedieneinheit für den Pelletofen Wodtke ivo.tec water+

  • für Bedienboard S4

Wodtke ivo.tec water+ Rahmen für Bedieneinheit Eckdaten:

  • Einfassung, Einrahmung
  • Position 14 in der Explosionszeichnung
Wodtke ivo.tec water+ Behälterdeckel Dichtung

Wodtke ivo.tec water+ Behälterdeckel Dichtung

Original Dichtung für Behälterdeckel für den Pelletofen Wodtke ivo.tec water+ BM 01

Wodtke ivo.tec water+ BM 01 Dichtung für Behälterdeckel Eckdaten:

  • Dichtschnur, Dichtungsband
  • Länge 1,25 m
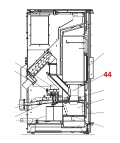
Wodtke ivo.tec water+ Brennertopf

Wodtke ivo.tec water+ Brennertopf

Original Brennertopf für den Pelletofen Wodtke ivo.tec water+

Wodtke ivo.tec water+ Brennertopf Eckdaten:

  • Brennerschale, Verbrennungsmulde
  • Material Edelstahl
  • Position 44 in der Explosionszeichnung
Wodtke ivo.tec water+ Dichtung für Motorplatte

Wodtke ivo.tec water+ Dichtung für Motorplatte

Original Dichtung für Motorplatte für den Pelletofen Wodtke ivo.tec water+ BM 01

Wodtke ivo.tec water+ BM 01 Dichtung für Motorplatte Eckdaten:

  • Dichtschnur, Dichtungsschnur
Wodtke ivo.tec water+ Dichtung für Zündelement

Wodtke ivo.tec water+ Dichtung für Zündelement

Original Dichtung für Zündelement für den Pelletofen Wodtke ivo.tec water+ BM 01

Wodtke ivo.tec water+ BM 01 Dichtung für Zündelement Eckdaten:

  • Dichtschnur, Dichtungsschnur
  • Position 70 in der Explosionszeichnung
Wodtke ivo.tec water+ Dichtung Lüftermotor

Wodtke ivo.tec water+ Dichtung Lüftermotor

Original Dichtung für Lüftermotor für den Pelletofen Wodtke ivo.tec water+ BM 01

Wodtke ivo.tec water+ BM 01 Dichtung für Lüftermotor Eckdaten:

  • Dichtschnur, Dichtband
  • Maße (B/H) 10 mm x 4 mm
  • Länge 56 cm
Wodtke ivo.tec water+ Feuerraumauskleidung

Wodtke ivo.tec water+ Feuerraumauskleidung

Original Feuerraumauskleidung für den Pelletofen Wodtke ivo.tec water+

  • für große Guss-Feuerraumtür

Wodtke ivo.tec water+ Feuerraumauskleidung Eckdaten:

  • Ofensteine, Kaminofensteine
  • Material Vermiculite
  • Position 31 in der Explosionszeichnung
Wodtke ivo.tec water+ Feuerraumtür groß

Wodtke ivo.tec water+ Feuerraumtür groß

Original Feuerraumtür groß für den Pelletofen Wodtke ivo.tec water+

Wodtke ivo.tec water+ Feuerraumtür Eckdaten:

  • Ofentür, Brennraumtür
  • Material Guss
  • ohne Glas und Anbauteile
  • lackiert
  • große Feuerraumtür
  • Position 28 in der Explosionszeichnung
Wodtke ivo.tec water+ Feuerraumtür klein

Wodtke ivo.tec water+ Feuerraumtür klein

Original Feuerraumtür klein für den Pelletofen Wodtke ivo.tec water+

  • für kleine Feuerraumtür

Wodtke ivo.tec water+ Feuerraumtür Eckdaten:

  • Brennraumtür, Tür vor dem Feuerraum
  • Material Guss
  • ohne Glas und Anbauteile
  • Position 33 in der Explosionszeichnung
Wodtke ivo.tec water+ Förderschnecke

Wodtke ivo.tec water+ Förderschnecke

Original Förderschnecke für den Pelletofen Wodtke ivo.tec water+

Wodtke ivo.tec water+ Förderschnecke Eckdaten:

  • Pelletschnecke, Beförderungsschnecke
  • Position 51 in der Explosionszeichnung
Wodtke ivo.tec water+ Fühler

Wodtke ivo.tec water+ Fühler

Original Temperaturfühler für den Pelletofen Wodtke ivo.tec water+

Wodtke ivo.tec water+ Temperaturfühler Eckdaten:

  • Temperatursensor, Temperaturmesser
  • Länge 1,08 m
  • PT1000 Fühler
  • verwendbar als Temperaturfühler für Pelletrutsche (TP) oder Rauchgasgebläse (TR)
  • Position 53 in der Explosionszeichnung
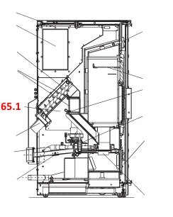
Wodtke ivo.tec water+ Hauptplatine mit 13 kW

Wodtke ivo.tec water+ Hauptplatine mit 13 kW

Original Hauptplatine 13 kW für den Pelletofen Wodtke ivo.tec water+

  • ACHTUNG: Die Platine gibt es in verschiedenen Ausführung.
  • Bitte beachten Sie Typenschild / Nennwärmeleistung!

Wodtke ivo.tec water+ Hauptplatine Eckdaten:

  • Platine, Mainboard
  • BM01
  • 13 KW
  • Position 65.1 in der Explosionszeichnung
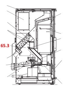
Wodtke ivo.tec water+ Hauptplatine mit 8 kW

Wodtke ivo.tec water+ Hauptplatine mit 8 kW

Original Hauptplatine 8 kW für den Pelletofen Wodtke ivo.tec water+

  • ACHTUNG: Die Platine gibt es in verschiedenen Ausführung.
  • Bitte beachten Sie Typenschild / Nennwärmeleistung!

Wodtke ivo.tec water+ Hauptplatine Eckdaten:

  • Mainboard, Motherboard
  • BM01
  • 8 KW
  • Position 65.3 in der Explosionszeichnung
Wodtke ivo.tec water+ Hauptplatine mit 9 kW

Wodtke ivo.tec water+ Hauptplatine mit 9 kW

Original Hauptplatine 9 kW für den Pelletofen Wodtke ivo.tec water+

  • ACHTUNG: Die Platine gibt es in verschiedenen Ausführung.
  • Bitte beachten Sie Typenschild / Nennwärmeleistung!

Wodtke ivo.tec water+ Hauptplatine Eckdaten:

  • Mainboard, Motherboard
  • BM01
  • 9 KW
  • Position 65.2 in der Explosionszeichnung
Wodtke ivo.tec water+ Kabel für Bedienboard

Wodtke ivo.tec water+ Kabel für Bedienboard

Original Kabel für Bedienboard für den Pelletofen Wodtke ivo.tec water+

Wodtke ivo.tec water+ Kabel für Bedienboard Eckdaten:

  • Leitung, Schnur
  • Position 63 in der Explosionszeichnung
Wodtke ivo.tec water+ Lüftermotor

Wodtke ivo.tec water+ Lüftermotor

Original Lüftermotor für den Pelletofen Wodtke ivo.tec water+

  • S5

Wodtke ivo.tec water+ Lüftermotor Eckdaten:

  • Motor, Belüftungsmotor
  • Abgasgebläse
  • Mit Wellendichtung
  • Position 61.1 in der Explosionszeichnung
Wodtke ivo.tec water+ Luftmengensensor

Wodtke ivo.tec water+ Luftmengensensor

Original Luftmengensensor für den Pelletofen Wodtke ivo.tec water+ BM 01

  • S4 Steuerung als Grundlage

Wodtke ivo.tec water+ BM 01 Luftmengensensor Eckdaten:

  • Luftmengenmesser, Luftmassenmesser
  • Maße (B/L/H) 95 mm x 50 mm x 20 mm
Wodtke ivo.tec water+ Scheibendichtung

Wodtke ivo.tec water+ Scheibendichtung

Scheibendichtung für den Pelletofen Wodtke ivo.tec water+ BM 01

Wodtke ivo.tec water+ BM 01 Scheibendichtung Eckdaten:

  • Dichtschnur, Ofenschnur
  • Flachdichtung
  • Maße (B/H) 8 mm x 2 mm
  • Länge 3,00 m
  • selbstklebend
Wodtke ivo.tec water+ Schlauch für Zündluftzufuhr

Wodtke ivo.tec water+ Schlauch für Zündluftzufuhr

Original Schlauch für den Pelletofen Wodtke Ivo.tec water+

Wodtke Ivo.tec water+ Schlauch Eckdaten:

  • Leitung, Röhre
  • Position 52 in der Explosionszeichnung
Wodtke ivo.tec water+ Schneckenmotor

Wodtke ivo.tec water+ Schneckenmotor

Original Schneckenmotor für den Pelletofen Wodtke ivo.tec water+

Wodtke ivo.tec water+ Schneckenmotor Eckdaten:

  • Förderschneckenmotor, Schneckengetriebe
  • S5
  • Position 50 in der Explosionszeichnung
Wodtke ivo.tec water+ Sichtscheibe

Wodtke ivo.tec water+ Sichtscheibe

Original Sichtscheibe für den Pelletofen Wodtke ivo.tec water+

  • für kleine Guss-Feuerraumtür

Wodtke ivo.tec water+ Sichtscheibe Eckdaten:

  • Glasscheibe, Kaminscheibe
  • Material Glas
  • hitzebeständig
  • Position 33 in der Explosionszeichnung
Wodtke ivo.tec water+ Türdichtung

Wodtke ivo.tec water+ Türdichtung

Türdichtung für den Pelletofen Wodtke ivo.tec water+

  • Wir empfehlen einen Kleber für die Montage, der durch punktuelles Auftragen, unterstützend wirken kann.
  • Auch empfehlen wir Dichtungsabbinder, damit die Dichtschnur-Enden nicht ausfransen.
  • Als optisches Highlight bieten wir ebenfalls Dichtungshülsen an.

Wodtke ivo.tec water+ Türdichtung Eckdaten:

  • Dichtschnur, Holzofenschnur
  • Kordeldichtung
  • Länge 3,00 m
  • Durchmesser 12 mm
Wodtke ivo.tec water+ Türdichtung Aschelade

Wodtke ivo.tec water+ Türdichtung Aschelade

Türdichtung für Aschetür für den Pelletofen Wodtke ivo.tec water+

  • Wir empfehlen einen Kleber für die Montage, der durch punktuelles Auftragen, unterstützend wirken kann.
  • Auch empfehlen wir Dichtungsabbinder, damit die Dichtschnur-Enden nicht ausfransen.
  • Als optisches Highlight bieten wir ebenfalls Dichtungshülsen an.

Wodtke ivo.tec water+ Türdichtung für Aschetür Eckdaten:

  • Türband, Dichtung
  • Kordeldichtung
  • Länge 3,00 m
  • Durchmesser 12 mm
Wodtke ivo.tec water+ Zündelement

Wodtke ivo.tec water+ Zündelement

Original Zündung für den Pelletofen Wodtke ivo.tec water+

Wodtke ivo.tec water+ Zündung Eckdaten:

  • Zündkerze, Zündpatrone
  • Material Keramik
  • Z7
  • inkl. Zündrohr mit Bajonettverschluss
  • Position 72.1 in der Explosionszeichnung
Wodtke ivo.tec water+ Zündkabel

Wodtke ivo.tec water+ Zündkabel

Original Zündkabel für den Pelletofen Wodtke ivo.tec water+

  • Zündkabel wird ohne Sicherung geliefert, bitte separat dazu bestellen, falls erforderlich

Wodtke ivo.tec water+ Zündkabel Eckdaten:

  • Kabel, Zündleitung
  • Länge 6,00 m
  • ohne Sicherung
  • Position 10.2 in der Explosionszeichnung
Wodtke ivo.tec water+ Zündpatrone ZP7

Wodtke ivo.tec water+ Zündpatrone ZP7

Original Zündung für den Pelletofen Wodtke Ivo.tec water+

  • ab Fertig-Nr. 610 768 oder nach Umrüstung auf Zündelement Z7

Wodtke Ivo.tec water+ Zündung Eckdaten:

  • Glühstab, Zündelektrode
  • Maße (L) 79 mm
  • Durchmesser 10 mm
  • Material Keramik
  • keramisch
  • Länge Einkerbung 11 mm
  • Position 72.2 in der Explosionszeichnung
Wodtke ivo.tec water+ Zwischenbodendichtung

Wodtke ivo.tec water+ Zwischenbodendichtung

Original Zwischenbodendichtung für den Pelletofen Wodtke ivo.tec water+ BM 01

Wodtke ivo.tec water+ BM 01 Zwischenbodendichtung Eckdaten:

  • Dichtung, Dichtschnur
  • Maße (B/L/H) 207 mm x 269 mm x 5 mm

Wodtke Ersatzteil Anfrage

Captcha
Beratung unter:
040 / 28 48 48 210

Ihre Vorteile

  • Mehr als 15 Jahre Erfahrung
  • Kostenlose Fachberatung
  • Original Ersatzteile
  • Kurze Lieferzeit