Ersatzteile für Wodtke Frank air+ Kaminofen

Wodtke Frank air+ Ersatzteile

Wodtke überzeugt durch moderne Technik, Funktionalität und die Verarbeitung hochwertiger Materialien. Diese Qualität spiegelt sich in dem Wodtke Frank air+ wieder. Auch ein hochwertiger Kaminofen wie der Wodtke Frank air+ bedarf der richtigen Pflege und dem rechtzeitigen Austauschen defekter Teile. Alle benötigten Ersatzteile für Ihren Wodtke Frank air+ finden Sie bei uns im Shop, wie zum Beispiel:

  
  Bedieneinheit
  Brennertopf
  Dichtung
  Fühlerhülse
  Kabel
  Lüftermotor
  Luftmengensensor
  Revisionsdichtung
  Rückwandstein
  Schneckenmotor
  Sichtscheibe
  Temperaturfühler
  Zündkabel
  Zündpatrone
  Zündung
  Zugumlenkung

Wodtke Frank air+ Ersatzteile – günstig online bestellen

Wodtke Frank air+ Bedienboard

Wodtke Frank air+ Bedienboard

Original Bedieneinheit für den Pelletofen Wodtke Frank air+

Wodtke Frank air+ Bedieneinheit Eckdaten:

  • Bedienfeld, Bedienboard
  • Maße (B/L) 30 mm mm x 140 mm mm
  • BB-S4
  • ohne Kabel
  • Position 19.1 in der Explosionszeichnung
Wodtke Frank air+ Brennertopf mit Auflage

Wodtke Frank air+ Brennertopf mit Auflage

Original Brennertopf für den Pelletofen Wodtke Frank air+ PO 04.5 E

  • Passend für Modelle bis Fert.-Nr. 708 922.
  • Passend für Modelle mit flacher und runder Tür.

Wodtke Frank air+ PO 04.5 E Brennertopf Eckdaten:

  • Brennerschale, Verbrennungsmulde
  • Maße (B/L/H) 160 mm x 195 mm x 88 mm
  • Material Guss
  • Durchmesser unten 70 mm, Durchmesser oben 142mm
  • Mit integrierter Halterung
Wodtke Frank air+ Brennertopf ohne Auflage

Wodtke Frank air+ Brennertopf ohne Auflage

Original Brennertopf ohne Auflage für den Pelletofen Wodtke Frank air+

  • ab Fertig.-Nr. 708 923

Wodtke Frank air+ Brennertopf Eckdaten:

  • Brennerschale, Verbrennungsmulde
  • Maße (B/L/H) 141 mm x 150 mm x 76 mm
  • Material Guss
  • ohne Auflage / Halterung
  • Position 6.2 in der Explosionszeichnung
Wodtke Frank air+ Dichtung Fühlerhülse

Wodtke Frank air+ Dichtung Fühlerhülse

Original Dichtung für Fühlerhülse für den Pelletofen Wodtke Frank air+ PO 04.5 E

  • Passend für Modelle mit flacher und runder Tür.

Wodtke Frank air+ PO 04.5 E Dichtung für Fühlerhülse Eckdaten:

  • Dichtband, Dichtungsband
Wodtke Frank air+ Dichtung Lüftermotor

Wodtke Frank air+ Dichtung Lüftermotor

Original Dichtung für Lüftermotor für den Pelletofen Wodtke Frank air+ PO 04.5 E

  • Passend für Modelle mit flacher und runder Tür.

Wodtke Frank air+ PO 04.5 E Dichtung für Lüftermotor Eckdaten:

  • Dichtschnur, Dichtungsband
  • Maße (B/H) 10 mm x 4 mm
  • Länge 56 cm
Wodtke Frank air+ Fühler

Wodtke Frank air+ Fühler

Original Temperaturfühler für den Pelletofen Wodtke Frank air+

Wodtke Frank air+ Temperaturfühler Eckdaten:

  • Temperatursensor, Temperaturmesser
  • Länge 1,08 m
  • PT1000 Fühler
  • verwendbar als Temperaturfühler für Pelletrutsche (TP) oder Rauchgasgebläse (TR)
  • Position 16 in der Explosionszeichnung
Wodtke Frank air+ Fühlerhülse

Wodtke Frank air+ Fühlerhülse

Original Fühlerhülse für den Pelletofen Wodtke Frank air+

  • Kurz, für Rauchgas

Wodtke Frank air+ Fühlerhülse Eckdaten:

  • Hülse, Kapsel
  • Maße (B/L) 52 mm x 80 mm
  • Durchmesser 10 mm
  • Position 12 in der Explosionszeichnung
Wodtke Frank air+ Kabel für Bedienboard

Wodtke Frank air+ Kabel für Bedienboard

Original Kabel für Bedienboard für den Pelletofen Wodtke Frank air+

  • für S3/S4

Wodtke Frank air+ Kabel für Bedienboard Eckdaten:

  • Leitung, Schnur
  • Länge 8,00 m
Wodtke Frank air+ Lüftermotor

Wodtke Frank air+ Lüftermotor

Original Lüftermotor für den Pelletofen Wodtke Frank air+

  • Bitte achten Sie auf die Bezeichnung Ihres Bediener-Panels. Dieser ist für S5

Wodtke Frank air+ Lüftermotor Eckdaten:

  • Motor, Belüftungsmotor
Wodtke Frank air+ Luftmengensensor

Wodtke Frank air+ Luftmengensensor

Original Luftmengensensor für den Pelletofen Wodtke Frank air+ PO 04.5 E

  • S4 Steuerung als Grundlage

Wodtke Frank air+ PO 04.5 E Luftmengensensor Eckdaten:

  • Luftmengenmesser, Luftmassenmesser
  • Maße (B/L/H) 95 mm x 50 mm x 20 mm
  • Position 9.1 in der Explosionszeichnung
Wodtke Frank air+ Revisionsdichtung

Wodtke Frank air+ Revisionsdichtung

Original Revisionsdichtung für den Pelletofen Wodtke Frank air+ PO 04.5 E

  • Passend für Modelle mit flacher und runder Tür.

Wodtke Frank air+ PO 04.5 E Revisionsdichtung Eckdaten:

  • Revisionsdeckeldichtung, Putzdeckeldichtung
  • Maße (B/L/H) 390 mm x 90 mm x 5 mm
Wodtke Frank air+ Rückwandstein

Wodtke Frank air+ Rückwandstein

Original Rückwandstein für den Pelletofen Wodtke Frank air+

Wodtke Frank air+ Rückwandstein Eckdaten:

  • Brennraumstein, Feuerraumstein
  • Position 20 in der Explosionszeichnung
Wodtke Frank air+ Scheibendichtung

Wodtke Frank air+ Scheibendichtung

Scheibendichtung für den Pelletofen Wodtke Frank air+ PO 04.5 E

  • Passend für Modelle mit flacher und runder Tür.

Wodtke Frank air+ PO 04.5 E Scheibendichtung Eckdaten:

  • Glasdichtung, Dichtschnur
  • Flachdichtung
  • Maße (B/H) 8 mm x 2 mm
  • Länge 3,00 m
  • selbstklebend
Wodtke Frank air+ Schneckenmotor

Wodtke Frank air+ Schneckenmotor

Original Schneckenmotor für den Pelletofen Wodtke Frank air+

Wodtke Frank air+ Schneckenmotor Eckdaten:

  • Förderschneckenmotor, Schneckengetriebe
  • Position 21.1 in der Explosionszeichnung
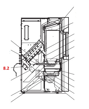
Wodtke Frank air+ Schneckenmotorkabel

Wodtke Frank air+ Schneckenmotorkabel

Original Kabel für Schneckenmotor für den Pelletofen Wodtke Frank air+

  • ab Steuerung S3

Wodtke Frank air+ Kabel für Schneckenmotor Eckdaten:

  • Leitung, Schnur
  • Position 8.2 in der Explosionszeichnung
Wodtke Frank air+ Sichtscheibe flach

Wodtke Frank air+ Sichtscheibe flach

Original Sichtscheibe flach für den Pelletofen Wodtke Frank air+

Wodtke Frank air+ Sichtscheibe Eckdaten:

  • Ofenglas, Kaminglas
  • Maße (B/L/H) 280 mm x 280 mm x 5 mm
  • Material Glas
  • Form flach
  • hitzebeständig
  • Position 2.1 in der Explosionszeichnung
Wodtke Frank air+ Sichtscheibe flach bedruckt

Wodtke Frank air+ Sichtscheibe flach bedruckt

Original Sichtscheibe flach bedruckt für den Pelletofen Wodtke Frank air+

Wodtke Frank air+ Sichtscheibe Eckdaten:

  • Glasscheibe, Glaskeramik
  • Material Glas
  • Form flach
  • hitzebeständig
  • passend für runde Tür
  • Bedruckung seitlich
  • Position 1.3 in der Explosionszeichnung
Wodtke Frank air+ Sichtscheibe rund

Wodtke Frank air+ Sichtscheibe rund

Original Sichtscheibe rund für den Pelletofen Wodtke Frank air+

  • nur für runde Tür

Wodtke Frank air+ Sichtscheibe Eckdaten:

  • Glasscheibe, Kaminscheibe
  • Position 1.1 in der Explosionszeichnung
Wodtke Frank air+ Türdichtung

Wodtke Frank air+ Türdichtung

Türdichtung für den Pelletofen Wodtke Frank air+

  • Wir empfehlen einen Kleber für die Montage, der durch punktuelles Auftragen, unterstützend wirken kann.
  • Auch empfehlen wir Dichtungsabbinder, damit die Dichtschnur-Enden nicht ausfransen.
  • Als optisches Highlight bieten wir ebenfalls Dichtungshülsen an.

Wodtke Frank air+ Türdichtung Eckdaten:

  • Dichtschnur, Ofenschnur
  • Kordeldichtung
  • Länge 3,00 m
  • Durchmesser 12 mm
Wodtke Frank air+ Zündelement

Wodtke Frank air+ Zündelement

Original Zündung für den Pelletofen Wodtke Frank air+

Wodtke Frank air+ Zündung Eckdaten:

  • Zündpatrone, Zündelektrode
  • Maße (B/L/H) 65 mm x 160 mm x 65 mm
  • Position 4.1 in der Explosionszeichnung
Wodtke Frank air+ Zündkabel

Wodtke Frank air+ Zündkabel

Original Zündkabel für den Pelletofen Wodtke Frank air+

  • Zündkabel wird ohne Sicherung geliefert, bitte separat dazu bestellen, falls erforderlich

Wodtke Frank air+ Zündkabel Eckdaten:

  • Kabel, Zündleitung
  • Länge 6,00 m
  • ohne Sicherung
  • Position 10.2 in der Explosionszeichnung
Wodtke Frank air+ Zündpatrone ZP3

Wodtke Frank air+ Zündpatrone ZP3

Original Zündpatrone ZP3 für den Pelletofen Wodtke Frank air+

Wodtke Frank air+ Zündpatrone Eckdaten:

  • Zündkerze, Glühzünder
  • Maße (B/L/H) 9 mm x 150 mm x 9 mm
  • Position 5 in der Explosionszeichnung
Wodtke Frank air+ Zugumlenkung

Wodtke Frank air+ Zugumlenkung

Original Zugumlenkung für den Pelletofen Wodtke Frank air+

Wodtke Frank air+ Zugumlenkung Eckdaten:

  • Rauchgasumlenkung, Rauchumlenkung
  • Maße (B/L/H) 304 mm x 136 mm x 6 mm
  • Material Stahl
  • Position 7 in der Explosionszeichnung

Wodtke Ersatzteil Anfrage

Captcha
Beratung unter:
040 / 28 48 48 210

Ihre Vorteile

  • Mehr als 15 Jahre Erfahrung
  • Kostenlose Fachberatung
  • Original Ersatzteile
  • Kurze Lieferzeit